Estepona

Te koop Vrijstaande Villa Costa Del Sol Estepona € 899.000,-

Ref.no: RSOR5327560
Price: € 899.000,-

1-7980e48d732b6fc85c14b43b94d2aa54.jpg

Te koop Vrijstaande Villa Costa Del Sol Estepona € 899.000,-

Bedrooms4
Salles de bains5
Superficie du terrain1517m²
Living area319m²
Poolyes
Gardenyes
Parkingyes
Built year1971
Instelling: Dicht bij zee, verstedelijking
Orientatie: Zuidoost, Zuid, Zuidwest
Staat: goed
Zwembad: privé
Klimaatregeling: airconditioning, warme airconditioning, koude airconditioning
Uitzicht: zee
Caractéristiques : Terrasse couverte, armoires encastrées, à proximité des transports, terrasse privée, solarium, salle de bain attenante, double vitrage, fibre optique
Meubels: volledig gemeubileerd
Keuken: volledig ingericht
Tuin: privé
Beveiliging: alarmsysteem
Parkeren: Garage, Open, privé
Nutsbedrijven: elektriciteit
Categorie: Investering
Ref.no: RSOR5327560
Price: € 899.000,-

Plus d'information ›››
Te koop Vrijstaande Villa Costa Del Sol Estepona € 899.000,-

Villa avec terrain de 1 500 m² et vue sur mer à Estepona – Une opportunité unique avec un fort potentiel

Située dans un quartier calme d'Estepona (secteur de Buenas Noches), cette charmante villa repose sur un terrain généreux de 1 500 m² et offre une vue imprenable sur la mer, une grande intimité et une excellente opportunité de créer une résidence exceptionnelle sur la Costa del Sol.
Avec ses 319 m² construits, la propriété allie le charme d'une villa traditionnelle aux améliorations récentes, tout en offrant la possibilité de moderniser certains espaces pour s'adapter à un mode de vie plus contemporain.

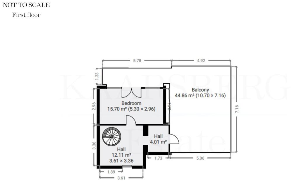
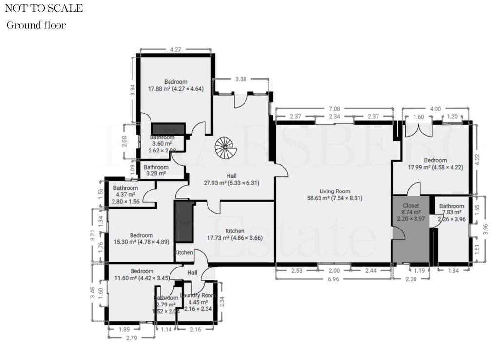
La villa comprend quatre chambres spacieuses, toutes situées au rez-de-chaussée, chacune dotée de placards intégrés et d'une salle de bains privative, ainsi qu'une buanderie séparée. L'entrée donne sur un impressionnant hall à double hauteur, d'où un escalier mène au premier étage. À l'étage, vous trouverez un bureau confortable avec cheminée et accès à une grande terrasse offrant une vue imprenable sur la mer.

La cuisine a été entièrement rénovée il y a trois ans et est équipée de meubles Designa Kitchen de style nordique, avec des placards et des tiroirs élégants alliant fonctionnalité et confort. Elle comprend également des appareils électroménagers neufs, dont un réfrigérateur combiné extra-large, une plaque de cuisson vitrocéramique avec hotte intégrée, un nouveau revêtement de sol et un système Quooker fournissant de l'eau bouillante instantanément.

Le séjour spacieux et lumineux s'ouvre sur une grande terrasse de 150 m² à l'avant de la maison, où se trouve une piscine de 40 m² entourée d'un vaste espace pour bronzer. Depuis le séjour, on accède également à une grande terrasse couverte de 65 m², idéale pour les repas en plein air, la détente à l'ombre ou pour profiter de la douceur du climat méditerranéen tout au long de l'année.

La propriété est équipée de la climatisation dans toutes les chambres, le bureau et le salon, installée il y a environ trois ans, ainsi que de deux nouveaux grands chauffe-eau.

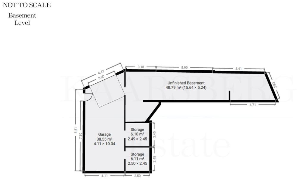
Outre sa vaste terrasse avant, la propriété offre d'agréables jardins où il fait bon vivre au calme. La villa dispose également d'une entrée latérale avec un espace de stationnement pour une voiture sur le terrain. De plus, une annexe indépendante avec accès au garage et un grand espace de rangement est idéale pour les outils, le matériel de jardinage ou tout autre usage.

Une propriété de charme, avec des espaces de vie spacieux et un potentiel important, située dans une région où les villas avec des terrains de cette taille et une vue sur la mer sont de plus en plus difficiles à trouver.

Alternatives

BOHACP1238_3179_V1_AC4E.jpg

Te koop Villa Costa Del Sol Estepona € 950.000,-

Price € 950.000,-
Plus d'information
BOHAAP4835_26097_V1_D411.jpg

Te koop Herenhuis Costa Del Sol Mijas Costa € 957.000,-

Price € 957.000,-
Plus d'information
BOHACP1372_4315_V1_0688.jpg

Te koop Villa Costa Del Sol Elviria € 960.000,-

Price € 960.000,-
Plus d'information
BOHAAP4817_26315_V1_DED1.jpg

Te koop Villa Costa Del Sol Mijas Costa € 839.000,-

Price € 839.000,-
Plus d'information
Disclaimer | Links
Casa Espana %lng_cookie_notice% %lng_close%
x