Istán

Te koop Gelijkvloers appartement Costa Del Sol Istán € 415.000,-

Ref.no: RSOR5335933
Price: € 415.000,-

1-7980e48d732b6fc85c14b43b94d2aa54.jpg

Te koop Gelijkvloers appartement Costa Del Sol Istán € 415.000,-

Bedrooms3
Salles de bains2
Superficie du terrain524m²
Living area138m²
Poolyes
Gardenyes
Parkingno
Instelling: Land
Orientatie: Zuid-West
Staat: redelijk, renovatie vereist
Zwembad: gemeenschappelijk
Uitzicht: Panoramisch, Meer
Functies: overdekt terras, privéterras, ensuite badkamer
Meubels: niet gemeubileerd, optioneel
Tuin: privé
Parkeren: straat
Categorie: noodlijdende, investeringen
Ref.no: RSOR5335933
Price: € 415.000,-

Plus d'information ›››
Te koop Gelijkvloers appartement Costa Del Sol Istán € 415.000,-

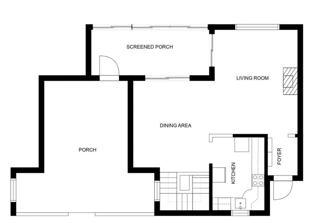
Maison de ville de trois chambres avec vue partielle sur le lac et les montagnes – Une maison en harmonie avec la nature

Complexe:
Ce complexe résidentiel comprend 58 maisons nichées dans un cadre montagneux pittoresque offrant une vue imprenable sur le lac. La plupart des résidents sont de nationalités diverses, notamment anglaise, belge, finlandaise, allemande, danoise, sud-africaine, espagnole, néerlandaise, italienne, suisse, et bien d'autres.

Sécurité
Il n'y a pas de service de sécurité dédié, mais le quartier est extrêmement sûr.

Détails de la propriété
Salon : Spacieux et baigné de lumière naturelle, avec des fenêtres orientées sud et ouest.
Cuisine : Actuellement fermée, mais elle peut être ouverte pour se fondre avec le séjour, créant ainsi un espace plus ouvert et plus vaste.
Chambres : Trois chambres.
Salles de bains : Deux salles de bains complètes et des toilettes pour invités.
Espace extérieur : Un jardin privé généreux, idéal pour profiter de l'air frais, du chant des oiseaux et de vues naturelles à couper le souffle.
Des vues imprenables : un paysage pittoresque dominé par le lac, entouré de montagnes qui évoquent un sentiment de tranquillité et de bien-être.
État de la maison
Le logement est en bon état et habitable immédiatement. Toutefois, pour une impression d'espace accrue, une rénovation partielle ou totale est recommandée.

Environnement naturel
Située dans un quartier paisible entouré d'une végétation luxuriante, cette maison est idéale pour ceux qui recherchent un mode de vie en harmonie avec la nature.

Accessibilité et commodité
La résidence se trouve à seulement 7 minutes en voiture du Manolo Santana Racquet Club et à 10-12 minutes de Puerto Banús ou du Puente Romano Resort.

Proximité des services essentiels
Accès facile aux supermarchés, aux écoles prestigieuses, aux clubs de golf et de tennis et aux centres de santé, le tout à 7-10 minutes en voiture.

Sentiers de randonnée
Profitez d'un accès direct aux sentiers de randonnée depuis la communauté.

Parking
Le logement ne comprend pas de place de parking attitrée, mais des places gratuites sont disponibles dans le parking commun situé à proximité de la maison.

Stockage
Il n'y a pas de local de rangement commun, mais la maison dispose d'un espace de rangement désigné.

COÛTS : 150 €/mois pour la communauté, 570 € par an pour l'IBI.

Alternatives

BOHACP1426_4779_V1_ED8C.jpg

Te koop Appartement Costa Del Sol Estepona € 389.000,-

Price € 389.000,-
Plus d'information
BOHAAP3943_2643_V1_49B1.jpg

Te koop Appartement Costa Del Sol Marbella € 395.000,-

Price € 395.000,-
Plus d'information
BOHAAP4862_26709_V1_B151.jpg

Te koop Appartement Costa Del Sol Fuengirola € 485.000,-

Price € 485.000,-
Plus d'information
BOHAAP4893_27171_V1_0D3A.jpg

Te koop Appartement Costa Del Sol Mijas € 362.000,-

Price € 362.000,-
Plus d'information
Disclaimer | Links
Casa Espana %lng_cookie_notice% %lng_close%
x