Estepona

Te koop Residential Plot Costa Del Sol Estepona € 300.000,-

Ref.no: RSOR5317642
Price: € 300.000,-

1-7980e48d732b6fc85c14b43b94d2aa54.jpg

Te koop Residential Plot Costa Del Sol Estepona € 300.000,-

Poolno
Gardenyes
Parkingno
Ligging: Stad, Dorp, Dichtbij winkels, Dichtbij zee, Dichtbij stad, Dichtbij scholen
Orientatie: Zuid
Ref.no: RSOR5317642
Price: € 300.000,-

Plus d'information ›››
Te koop Residential Plot Costa Del Sol Estepona € 300.000,-

Opportunité de développement dans la vieille ville d'Estepona

Une opportunité de plus en plus rare d'acquérir un terrain constructible à large façade dans l'une des rues résidentielles les plus prisées du centre historique d'Estepona.

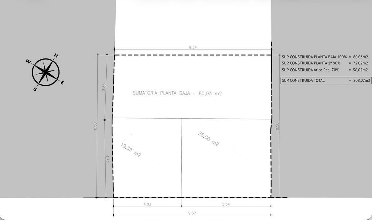
Le terrain s'étend sur environ 80 m², avec une façade généreuse de près de 10 mètres – un atout considérable dans le quartier très urbanisé de la vieille ville. Cette largeur permet une façade bien plus équilibrée et expressive sur le plan architectural que ce qui est généralement possible à cet emplacement.

Les paramètres de planification permettent la construction de :
80 m² rez-de-chaussée
premier étage de 72 m²
grenier de 56 m²

Offrant environ 208 m² hors sol, avec la possibilité supplémentaire — sous réserve de la conception technique finale et de la faisabilité des fouilles — d'intégrer un sous-sol d'environ 40 m², créant une surface construite totale d'environ 248 m².

Le terrain bénéficie d'une orientation plein sud, garantissant une excellente luminosité naturelle tout au long de la journée – un véritable atout dans le quartier de la vieille ville où l'orientation est primordiale.

Située à quelques pas seulement de certaines des plus belles places d'Estepona et à une distance de marche confortable de toutes les commodités et du front de mer, la propriété offre à la fois intimité et accès immédiat à l'animation de la vie citadine.

Ce type d'opportunités est rare. Le centre historique possède une emprise urbaine fixe, et les parcelles constructibles bien situées et d'une superficie significative sont rarement mises sur le marché.

Cela représente une opportunité exceptionnelle pour un acheteur privé souhaitant créer une résidence sur mesure dans un emplacement de premier choix, ou pour un investisseur/promoteur exigeant cherchant à livrer un produit final de haute qualité dans l'un des cadres urbains les plus authentiques de la Costa del Sol.

Alternatives

1-7980e48d732b6fc85c14b43b94d2aa54.jpg

Te koop Residential Plot Costa Del Sol La Duquesa € 285.000,-

Price € 285.000,-
Plus d'information
1-7980e48d732b6fc85c14b43b94d2aa54.jpg

Te koop Residential Plot Costa Del Sol Vélez-málaga € 315.000,-

Price € 315.000,-
Plus d'information
1-7980e48d732b6fc85c14b43b94d2aa54.jpg

Te koop Residential Plot Costa Del Sol El Rosario € 250.000,-

Price € 250.000,-
Plus d'information
1-7980e48d732b6fc85c14b43b94d2aa54.jpg

Te koop Residential Plot Costa Del Sol Manilva € 349.000,-

Price € 349.000,-
Plus d'information
Disclaimer | Links
Casa Espana %lng_cookie_notice% %lng_close%
x