La Capellania

Te koop Vrijstaande Villa Costa Del Sol La Capellania € 1.375.000,-

Ref.no: RSOR5217520
Price: € 1.375.000,-

1-7980e48d732b6fc85c14b43b94d2aa54.jpg

Te koop Vrijstaande Villa Costa Del Sol La Capellania € 1.375.000,-

Bedrooms3
Salles de bains2
Superficie du terrain119m²
Poolyes
Gardenyes
Parkingyes
Built year1984
Setting: Close To Shops, Close To Sea, Close To Town, Urbanisation
Orientation: South East, South, South West
Condition: Excellent
Pool: Private
Climate Control: Air Conditioning, Hot A/C, Cold A/C, U/F Heating, U/F/H Bathrooms
Views: Sea, Mountain, Port, Panoramic, Pool, Urban
Features: Covered Terrace, Fitted Wardrobes, Private Terrace, WiFi, Storage Room, Utility Room, Ensuite Bathroom, Marble Flooring, Double Glazing, Fiber Optic
Furniture: Fully Furnished
Kitchen: Fully Fitted
Garden: Private, Landscaped, Easy Maintenance
Security: Electric Blinds, Alarm System
Parking: Garage, More Than One, Private
Utilities: Electricity, Drinkable Water
Category: Resale
Ref.no: RSOR5217520
Price: € 1.375.000,-

Plus d'information ›››
Te koop Vrijstaande Villa Costa Del Sol La Capellania € 1.375.000,-

Welcome to this beautiful Mediterranean villa, located in the sought-after area of La Capellanía - known for its quiet surroundings, stunning sea views, and easy access to everything you need.

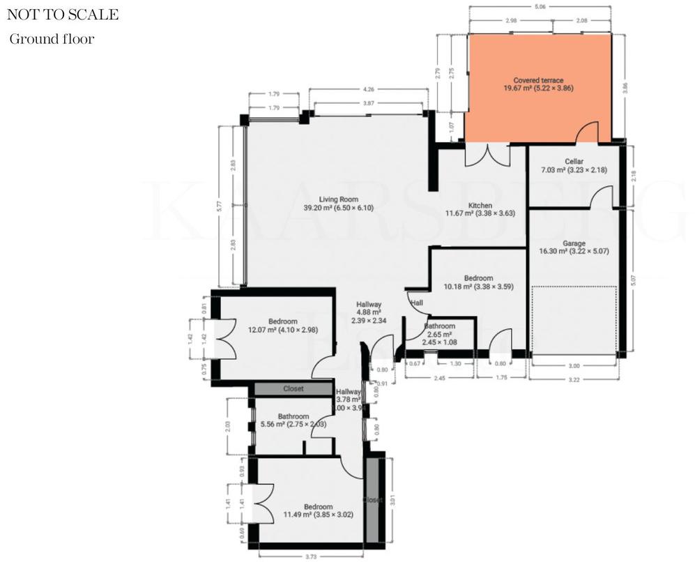
This lovely home offers three bedrooms and two bathrooms, spread across 119 m² of living space on a generous 600 m² plot.
The villa is designed for comfortable year-round living, with underfloor heating, air conditioning, and plenty of natural light flowing through every room.

The open-plan living area connects seamlessly to a fully fitted kitchen and a covered terrace, creating the ideal setting for both relaxing and entertaining.
Step outside and enjoy the private swimming pool, large terrace, and wonderful views over Fuengirola and the Mediterranean Sea.

The property comes fully furnished and ready to move into, featuring a garage and all the modern comforts you’d expect.
Within a short drive, you’ll find local restaurants, shops, and beaches - making this home perfect as both a permanent residence or a holiday retreat.

A true gem on the Costa del Sol that combines peace, privacy, and proximity to the coast.

Alternatives

1-7980e48d732b6fc85c14b43b94d2aa54.jpg

Te koop Vrijstaande Villa Costa Del Sol Sierrezuela € 1.285.000,-

Price € 1.285.000,-
Plus d'information
1-7980e48d732b6fc85c14b43b94d2aa54.jpg

Te koop Vrijstaande Villa Costa Del Sol La Capellania € 1.325.000,-

Price € 1.325.000,-
Plus d'information
1-7980e48d732b6fc85c14b43b94d2aa54.jpg

Te koop Vrijstaande Villa Costa Del Sol Valle Romano € 1.295.000,-

Price € 1.295.000,-
Plus d'information
1-7980e48d732b6fc85c14b43b94d2aa54.jpg

Te koop Vrijstaande Villa Costa Del Sol Estepona € 1.440.000,-

Price € 1.440.000,-
Plus d'information
Disclaimer | Links
Casa Espana %lng_cookie_notice% %lng_close%
x